AUTOCADで制作した2次元の図面集

左側が寸法線が入っていない図面、右側が寸法線が入っている図面となっています。図面をクリックしますと大きく表示されます。

大きく表示されたあとも、右下の通常のサイズに伸ばすボタンを押してさらに大きくしてご覧ください。

寸法線なし正面図 寸法線入り正面図
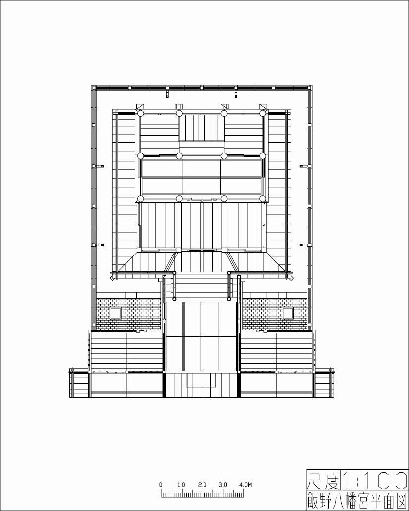
寸法線なし平面図 寸法線入り平面図
寸法線なし背面図 寸法線入り背面図
寸法線なし左側面図 寸法線入り左側面図

戻る